SS BUILDERS AND DEVELOPERS IS NOW AVR PROJECTS
- Location: Pedda amberpet, Hyderabad 
- Area: 1.30 Acres with 22 Gated Independent Homes 
- Project Cost: 30 Crores (Approx.) 
- Status of Project: Upcoming 
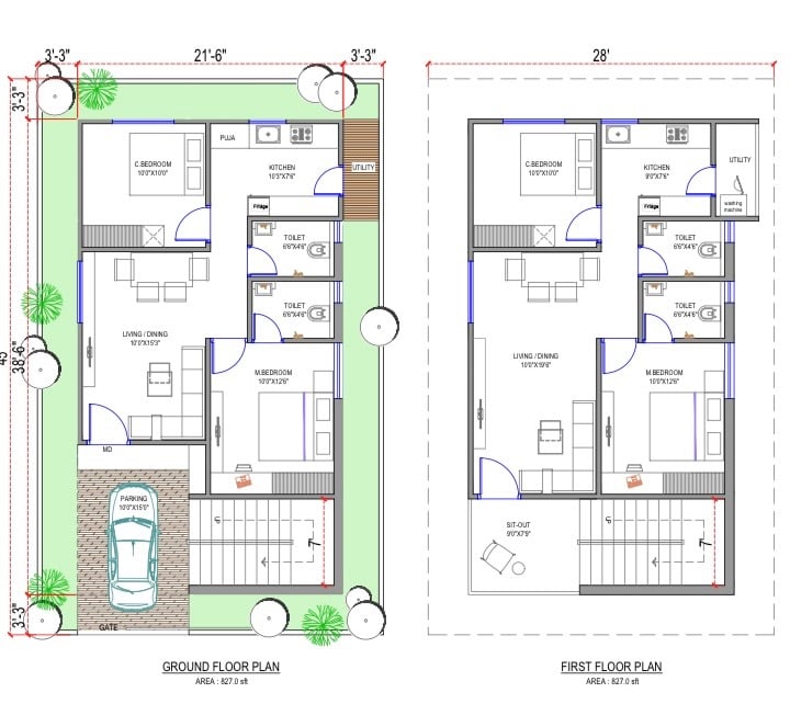
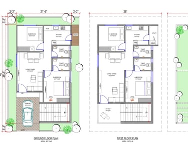
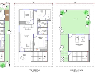
- Highlights: A premium independent gated community offering G+1 independent house with penthouses, thoughtfully designed with modern amenities including a fitness center, mini banquet hall, aerobics, gym, meditation hall, indoor games, and open plots. This project redefines comfortable and luxurious living in Pedamberpet, Hyderabad. 


Floor Plans




Contact


Plot No. A/28, 4th Floor,Behind Pvt Market,HUDA Colony,Kothapet, Hyderabad - 500035
+91 900000000
contact@avrprojects.com
